Plas Kynaston Clubhouse

Client
Cefn Community Council

Stage
Grant Consultation

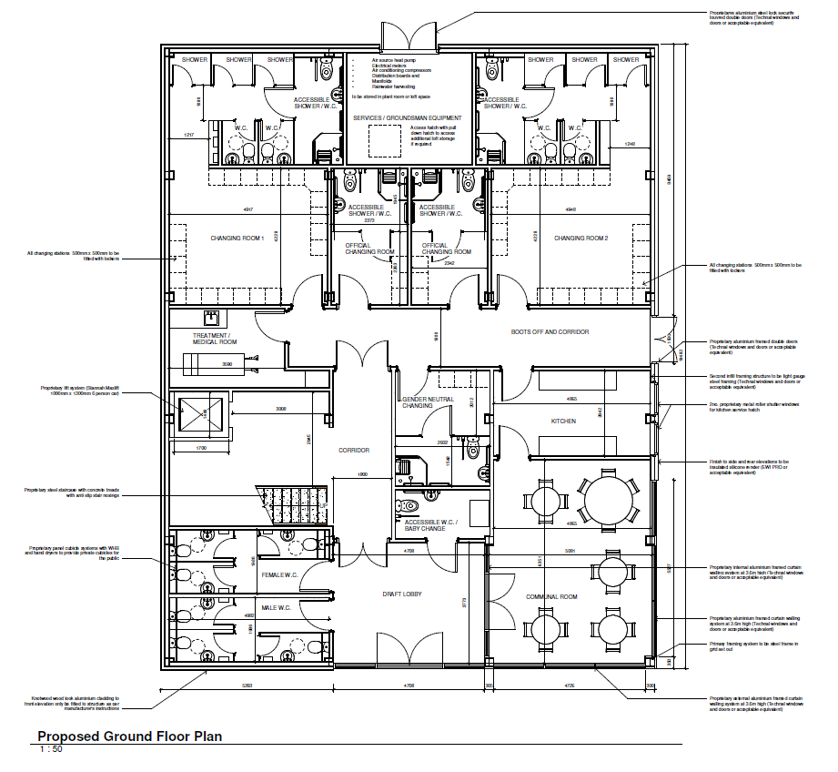
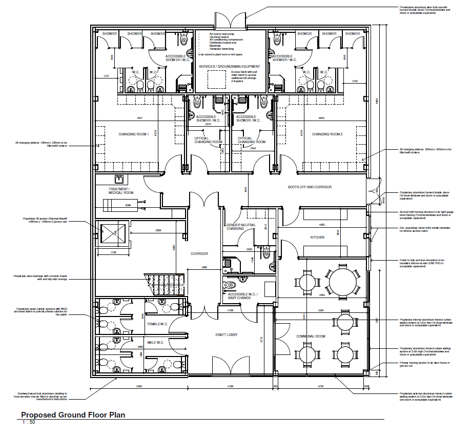
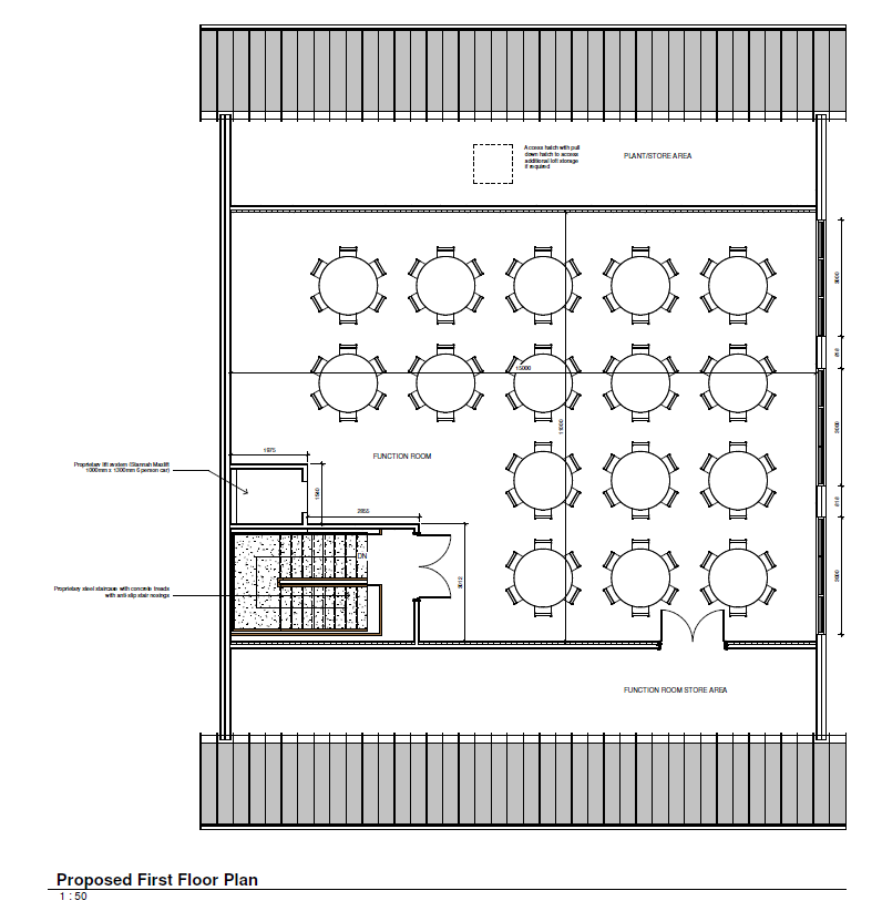
The Plas Kynaston Clubhouse was designed as a new community facility to support Cefn Mawr Rangers FC, with a particular focus on providing high-quality provision for women’s and girls’ football alongside wider community use. The brief was developed to align with Football Association of Wales Tier 2 club licensing requirements and the Fit for Future Facilities programme, including compliant changing facilities, inclusive and welcoming environments, and flexible community space. The design also responds to FAW guidance on female-friendly facilities, ensuring privacy, accessibility, and environments that support confidence, participation, and long-term growth of the women’s game.

The project was developed using our structured and collaborative design process, working closely with the client to test ideas, assess feasibility, and shape a scheme that met both operational needs and funding criteria. The final proposals fully satisfied the agreed brief and were well received by the client at feasibility stage. The scheme has been fully costed and is currently under FAW grant consultation, forming part of the next steps toward securing funding and delivering a sustainable, community-focused clubhouse.

Previous
Previous

The Looking Glass